Découvrez les différents accessoires qui compose un réseau de chauffage et d’eau chaude sanitaire.
L’alimentateur automatique

Alimentateur automatique pour le remplissage automatique des installations de chauffage.
Dès que la pression du circuit passe en dessous de la pression de consigne, l’alimentateur laisse entrer de l’eau dans le circuit pour remonter à la pression demandée.
L’anti bélier



Fonction:
L’anti-bélier absorbe l’onde de choc crée dans une installation par la fermeture rapide d’une vanne ou d’un robinet (robinet de salle d’eau mono commande, électrovanne de machine à laver …)
Pose:
En dérivation sur le circuit, le plus près possible de l’origine du coup de bélier.

La bouteille de découplage

Dans les circuits de chauffage ou de climatisation, la bouteille de découplage hydraulique rempli les différentes fonctions :
- Séparateur hydraulique, pour rendre indépendants les circuits hydrauliques primaires et secondaires.
- Pot de décantation, pour permettre la séparation et la décantation des impuretés présentes dans les circuits.
- Purgeur automatique, pour l’évacuation de l’air présent dans les circuits.
La bouteille de mélange

Dans les installations de chauffage, la bouteille de mélange permet :
D’augmenter le volume d’eau de l’installation, donc de limiter le nombre de démarrages du brûleur, d’où un meilleur rendement, de travailler avec des températures d’eau différentes :
- L’eau de retour d’un plancher chauffant est réchauffée avant de retourner à la chaudière.
- On peut distribuer un circuit plancher chauffant et un circuit radiateur.
- De décanter les boues.
- De purger l’air.
Dans les installations de climatisation, la bouteille de mélange permet :
- D’augmenter le volume d’eau de l’installation, donc de limiter le nombre de démarrages du groupe froid, d’où une meilleure efficacité.
La bouteille d’injection

La bouteille d’injection permet d’introduire dans une installation de chauffage ou de climatisation les produits complémentaires à l’eau: glycol (antigel), additifs pour la protection du circuit, etc…
L’électrovanne

Une électrovanne est un dispositif commandé électriquement permettant d’autoriser ou d’interrompre par une action mécanique, la circulation d’un fluide ou d’un gaz dans un circuit.
Il existe deux types d’électrovannes : « tout ou rien » et « proportionnelle ».
Les électrovannes dites de « tout ou rien » sont des électrovannes qui ne peuvent s’ouvrir que en entier ou pas du tout. L’état change suivant qu’elle soit alimentée électriquement ou non.
Les électrovannes proportionnelles sont celles qui peuvent être ouvert avec plus ou moins d’amplitude en fonction du besoin. Elles sont généralement utilisés grâce a une commande.
Les électrovannes les plus courantes sont celles utilisées dans les lave-linge et lave-vaisselle pour le remplissage de la cuve. Elles sont aussi beaucoup utilisé sur les chambre froides et autre système de climatisation.
Le circulateur

Il fait circuler l’eau chaude dans les canalisations et les radiateurs.
Le disconnecteur

Les disconnecteurs protègent les circuits d’eau potable en interrompant la continuité de l’alimentation à l’installation utilisatrice par auto vidange et mise à l’égout du fluide en cas de danger de retour d’eau dans la canalisation principale.
Le flussostat – fluxomètre

Fonction:
Le flussostat ou fluxomètre s’utilise toutes les fois où il faut détecter la présence ou l’absence de débit dans les installations. Par exemple : installations de chauffage, de climatisation, installations sanitaires avec échangeurs instantanés, installations de pompage, de traitement des eaux, il remplit les fonctions suivantes:
Contrôle d’appareils comme : pompes, brûleurs, compresseurs, vannes motorisées.
Déclenchement de dispositifs de signalisation ou d’alarme.
Pose:
Montage si possible à l’horizontale, en respectant les sens du flux indiqué sur l’appareil.

Le groupe de sécurité

Fonction:
Les groupes de sécurité protègent les chauffe-eau lorsque la pression interne atteint 7 bar. Lors du fonctionnement normal du chauffe-eau, la montée en température provoque une expansion du volume d’eau contenu dans le chauffe-eau. Cette eau s’écoule par l’orifice de décharge. Ce petit écoulement est normal, mais d’une part c’est un gaspillage, et d’autre part risque de créer une érosion du siège de la soupape, accélérant le débit de fuite. Il est possible de remédier à cet inconvénient dû à un phénomène purement physique par la pose d’un vase d’expansion sanitaire. La pose d’un réducteur de pression réglé à 3 bar est également recommandée.
L’évacuation vers l’égout se fait avec un siphon.

Pose:

Le mitigeur thermostatique

Fonction:
Le mitigeur thermostatique posé en sortie de ballon permet de distribuer l’eau chaude sanitaire à une température constante.
Il apporte le confort d’une eau chaude immédiate, et permet des économies importantes.
Pose:
Exemple de pose simple

Exemple de pose avec un bouclage de l’eau chaude sanitaire

Le réducteur de pression

Fonction:
Le réducteur de pression protège l’installation des surpressions et des variations de pression.
Pose:
Installer des vannes d’isolement de part et d’autre du réducteur de pression pour les opérations d’entretien.

Le séparateur d’air

Fonction:
Le dégazeur automatique élimine entièrement l’air contenu dans les installations de chauffage et de climatisation. Il agit jusqu’au niveau des microbulles dissoutes et permet ainsi à l’installation de fonctionner parfaitement, en éliminant les bruits et en supprimant les risques de corrosion.
Fonction:

Le vase d’expansion fermé

Le vase d’expansion fermé absorbe les variations du volume d’eau dues aux changements de température dans les installations de chauffage et de climatisation.
Le vase d’expansion ouvert


Le vase d’expansion ouvert absorbe les variations du volume d’eau dues aux changements de température dans les installations de chauffage à combustible solide.
Le vase d’expansion sanitaire

Fonction:
Le vase d’expansion absorbe les variations du volume d’eau dues à la montée en température du chauffe-eau, il empêche le groupe de couler.
Pose:
Le vase se pose en dérivation entre le groupe de sécurité et le chauffe-eau.

Le pot de décantation

Fonction:
Dans les installations de chauffage, les pots de décantation permettent de recueillir les impuretés et « boues » en suspension assurant ainsi un bon fonctionnement et une plus grande longévité à l’installation.
Pose:
Normalement sur le retour.

Le purgeur d’air automatique

Fonction:
Le purgeur d’air automatique permet à l’installation de chauffage de fonctionner dans les meilleurs conditions. Il élimine l’air dont la présence perturbe les échanges thermiques, provoque des bruits et favorise la corrosion des circuits.
Pose:
Montage en position verticale, en tous les points de l’installation où les accumulations de gaz risquent d’en perturber le bon fonctionnement.
La soupape de sécurité

Elle évacue la pression en cas de surchauffe de l’installation de chauffage.
Le clapet anti thermosiphon

Le clapet anti thermosiphon évite le phénomène de (thermosiphon) dans l’installation de chauffage central. Quand le circulateur est arrêté, en été, ou quand la chaudière ne sert qu’à la production d’eau chaude sanitaire le clapet empêche toute circulation parasite dans le circuit de chauffage central.
Accessoires chauffage : La soupape différentielle


Fonction:
La soupape différentielle de décharge s’ouvre en établissant un by-pass entre le départ et le retour du circuit de chauffage, lorsque les robinets thermostatiques ou les vannes de zone se ferment.
Cela permet au circulateur de ne pas forcer et supprime les bruits dans l’installation.
Pose:

Accessoires chauffage : La soupape de sécurité sanitaire


Fonction:
Soupape de sécurité pour installations d’eau sanitaire. Protège l’installation des surpressions dans le générateur.
Pose:
Se pose impérativement sur l’arrivée d’eau froide du générateur.
Aucune vanne ni organe de réglage entre la soupape et le générateur.
Pose de clapets anti retour en amont de la soupape.
Accessoires chauffage : La soupape thermique


Les soupapes de sécurité thermiques sont utilisées pour la protection des chaudières à combustible solide.
En cas de surchauffe accidentelle, le refroidissement de la chaudière est assuré par l’ouverture de la soupape qui évacue l’eau chaude.
La pose d’une soupape de sécurité chauffage reste obligatoire.
La régulation de la température de la chaudière ne peut en aucun cas être assurée par la soupape seule.
Accessoires chauffage : Le robinet de vidange

Il sert à vidanger l’installation de chauffage.
Accessoires chauffage : Le robinet de radiateur thermostatique

Fonction:
Le robinet thermostatique assure automatiquement la régulation de la température émise par le radiateur, en agissant sur le débit d’entrée de l’eau chaude.
Pose:
La tête thermostatique doit toujours être montée horizontalement.

L’air doit pouvoir circuler librement autour de la tête thermostatique, pour assurer la meilleure précision et le confort souhaité.

Accessoires chauffage : Le filtre à fioul

Il retient les impuretés pouvant se trouver dans le fioul domestique.
Accessoires chauffage : La vanne de zone

Fonction:
La vanne déviatrice permet de dériver automatiquement un fluide dans les installations de chauffage, de climatisation ou les circuits sanitaires.
Pose:
L’axe de manœuvre peut être horizontal ou vertical, le moteur ne doit jamais se trouver sous la vanne. Dans les installations de climatisation le moteur doit être au dessus de la vanne.

Accessoires chauffage : La vanne mélangeuse 3 ou 4 voies

Les vannes mélangeuses sont utilisées dans les installations de chauffage pour mixer l’eau chaude venant du générateur (chaudière, capteur solaire, pompe à chaleur…) et l’eau de retour refroidi. Ce mélange permet d’obtenir une température optimale pour le logement chauffé.
Les vannes peuvent être manœuvrées manuellement ou être actionnées par un moteur commandé par une régulation.
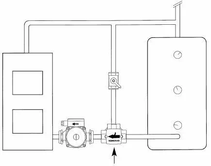
Accessoires chauffage : La vanne thermique

Fonction:
Dans les installations de chauffage à combustible solide la vanne permet de recycler entièrement l’eau de départ de la chaudière vers le retour, afin d’atteindre rapidement la température idéale de fonctionnement dans la chaudière. Lorsque la température de consigne est atteinte l’eau chaude commence à réchauffer progressivement le ballon de stockage, l’eau de retour du ballon est alors mélangée à l’eau de recyclage, ce qui permet d’éviter un retour trop froid et la formation du point de rosée dans la chaudière. Lors de la chauffe normale, la vanne assure la circulation entre la chaudière et le ballon stockeur.
Pose:
La vanne thermique peut être installée selon les schémas de pose ci-dessous.

Accessoires chauffage : Le servomoteur

Les servomoteurs sont utilisés pour la motorisation des vannes mélangeuses 3 ou 4 voies. La commande se fait par des systèmes de régulation.